5 310 500 ₽
Категория
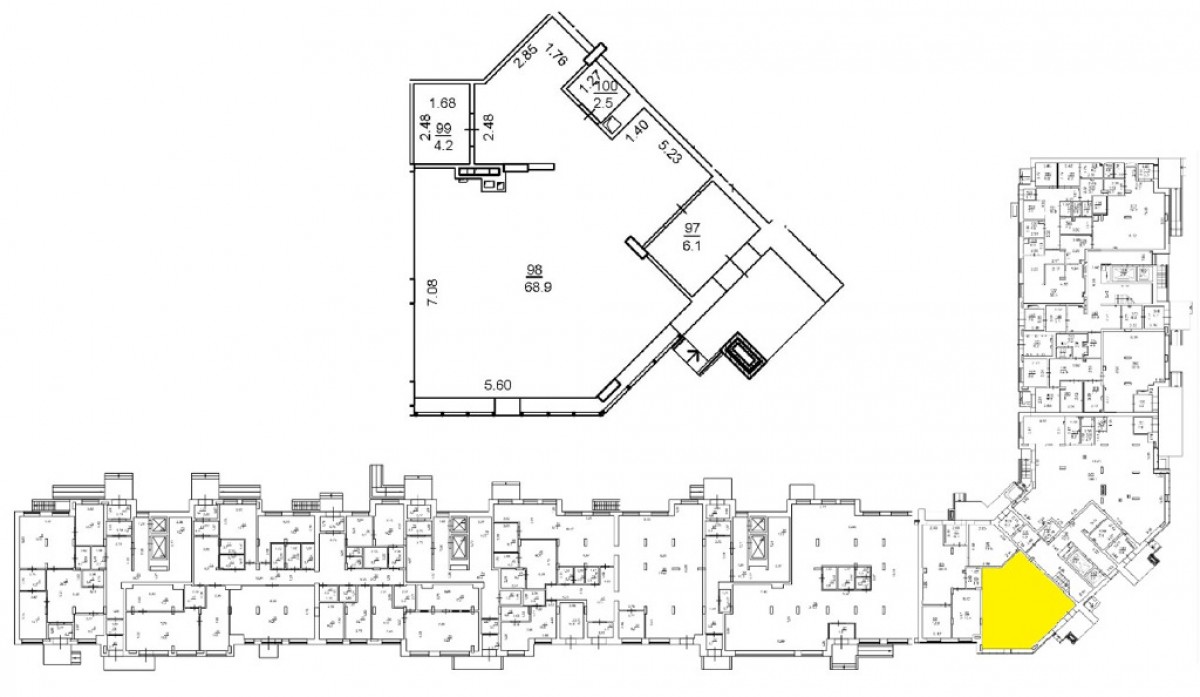
Торговая площадь
Хочу посмотреть
Предложить цену
Описание
В продаже помещение универсального назначения.
ПОЛНОЦЕННЫЙ ПЕРВЫЙ ЭТАЖ.
Дом сдан.
Дата размещения: 24.02.2026
Другие объекты
A PHP Error was encountered
Severity: Warning
Message: Invalid argument supplied for foreach()
Filename: search/RD_ad_page_tpl.php
Line Number: 356
Backtrace:
File: /var/www/primebro_com_usr/data/www/primebro.com/application/views/_redesign/search/RD_ad_page_tpl.php
Line: 356
Function: _error_handler
File: /var/www/primebro_com_usr/data/www/primebro.com/application/controllers/Search.php
Line: 402
Function: view
File: /var/www/primebro_com_usr/data/www/primebro.com/index.php
Line: 343
Function: require_once